出租商业餐厅 BOLSHAYA KONUSHENAYA 1 酒精许可证和商业登记
731
САНКТ-ПЕТЕРБУРГ
14 ноября 2025 в 20:57 (до 20.01.2030)
EKATERINA ILINA
Информация
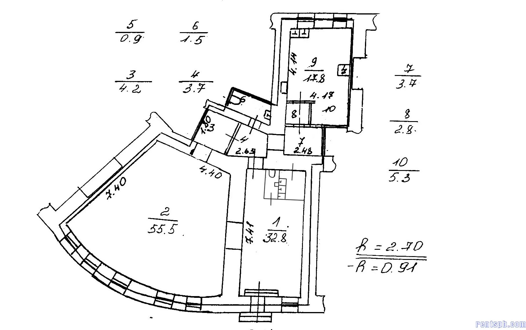
建议长期租用位于市中心圣路易斯的一家餐厅的房间。 Bolshaya Konyushennaya, 1(从 Konyushennaya 广场入口) 描述:总面积128.2平方米(三层住宅楼底层)。大厅面积 88.3 m2 最大天花板高度。 2.7 m,6 个窗户面向 Bolshaya Konyushennaya 街。和 Konyushennaya 广场,2 间浴室(1 名客户 + 1 名员工)功率:15 kW(实际上超过 30 kW),没有热水 - el。热水器,没有第二个入口。房屋通风+厨房提取物,“蜡烛”。
目前为餐饮企业(座位数46-50,自1996年开始营业)
可以在同一房屋的院子里租一个仓库,面积为31.3 m2,天花板高度为3.10 m,仓库温暖且电气化。理想的租金是每平方米3000。 128.2 平方米 总计 384,000 卢布














Комментарии
Написать автору
Заказать услугу